Přejít k obsahu | Přejít k hlavnímu menu

Find the home of your dreams

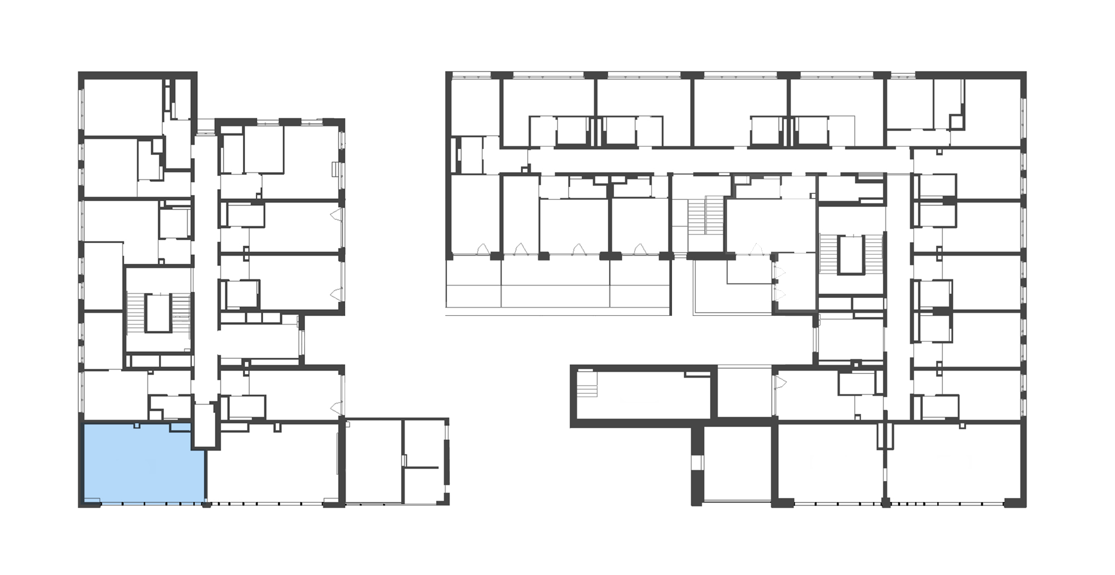
XENON

Retail space No. 2109
Layout store
Floor area 51 m2
Floor 1. NP
Orientation S
Price 5 554 000

Commercial unit with a total floor area of 51 sq. m. is located on the 1 floor.

The path to your new home

01

Reservation

Reserve your chosen unit.
02

Signing the contract

Sign the contract and look forward to your new home.
03

Moving in

Take over the completed unit and start living!

Financing

01

Reservation

After signing the Reservation Agreement, you will pay a reservation fee of CZK 150,000 within 5 working days. This amount will be credited towards the total purchase price.
02

Payment of the deposit

After signing the Future Purchase Agreement, you will pay a deposit of 20% of the total purchase price within 5 working days, reduced by the already paid reservation fee.
03

Payment Balance

After the issuance of the occupancy permit, you will pay the remaining balance of the purchase price, either through a loan or from your own funds.
04

Signing the contract and handing over the unit

Upon full payment of the purchase price, the unit will be handed over.
Illust image

Be a part of it with us!

Simply fill in your contact details and we will get back to you shortly with more information.

Your message